эскизный проект

архитектурный проект

Публичное пространства
Градостроительство
Производственные объекты
Жилье
Образование
Медиа
Коммерческое
Культурное пространство
Туристические объекты
Административные объекты
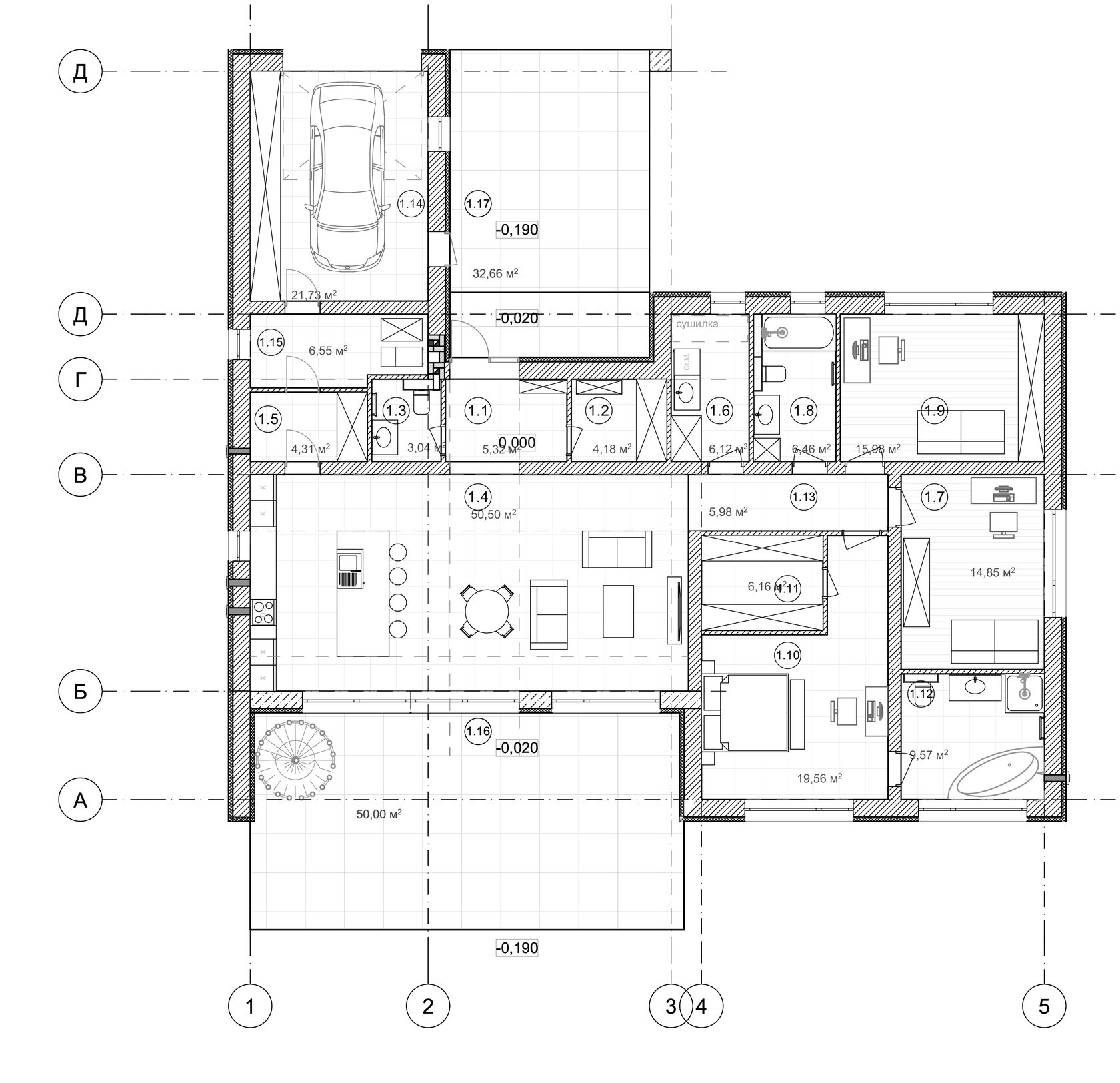
Общая площадь 205м

Простой в своем восприятие дом, запроектирован по принципу фрактальной модели, с постепенным усложнением в планировки, переходящих на детали интерьера.

Индивидуальный проект жилого дома

Загородный дом

Создание компактного административного центра для города Вилейка, который будет минимизировать затраты на строительство. В результате чего, появляется третий этаж в виде мансарды, стена, плавно переходящая в кровлю, западающая входная группа.

План первого этажа
+375336310012