эскизный проект

архитектурный проект

Создание компактного административного центра для города Вилейка, который будет минимизировать затраты на строительство. В результате чего, появляется третий этаж в виде мансарды, стена, плавно переходящая в кровлю, западающая входная группа.

Общая площадь 134м

Создание компактного административного центра для города Вилейка, который будет минимизировать затраты на строительство. В результате чего, появляется третий этаж в виде мансарды, стена, плавно переходящая в кровлю, западающая входная группа.


Индивидуальный проект жилого дома

Дачный дом
Публичное пространства
Градостроительство
Производственные объекты
Жилье
Образование
Медиа
Коммерческое
Культурное пространство
Туристические объекты
Административные объекты
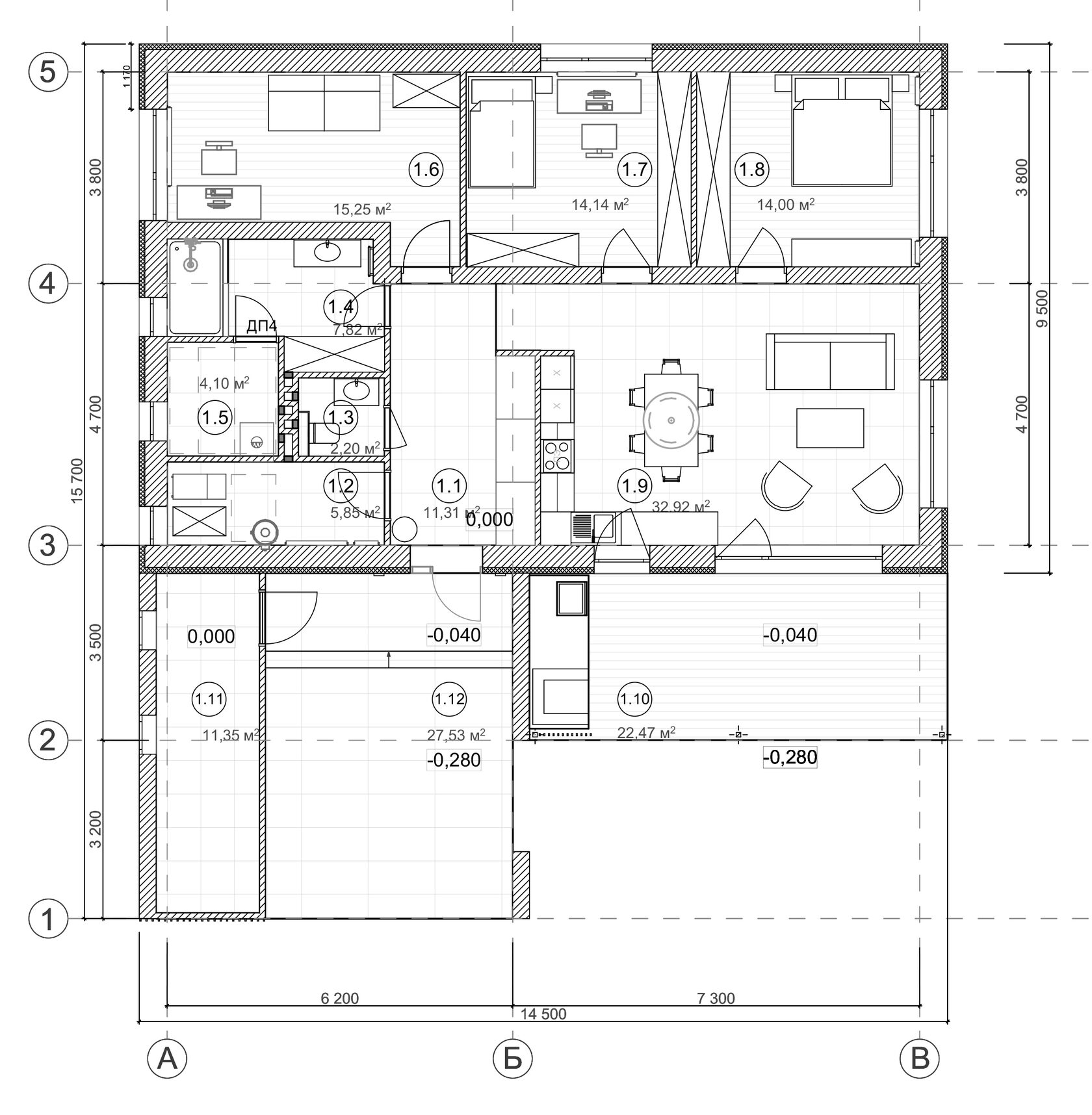
План первого этажа