эскизный проект

архитектурный проект

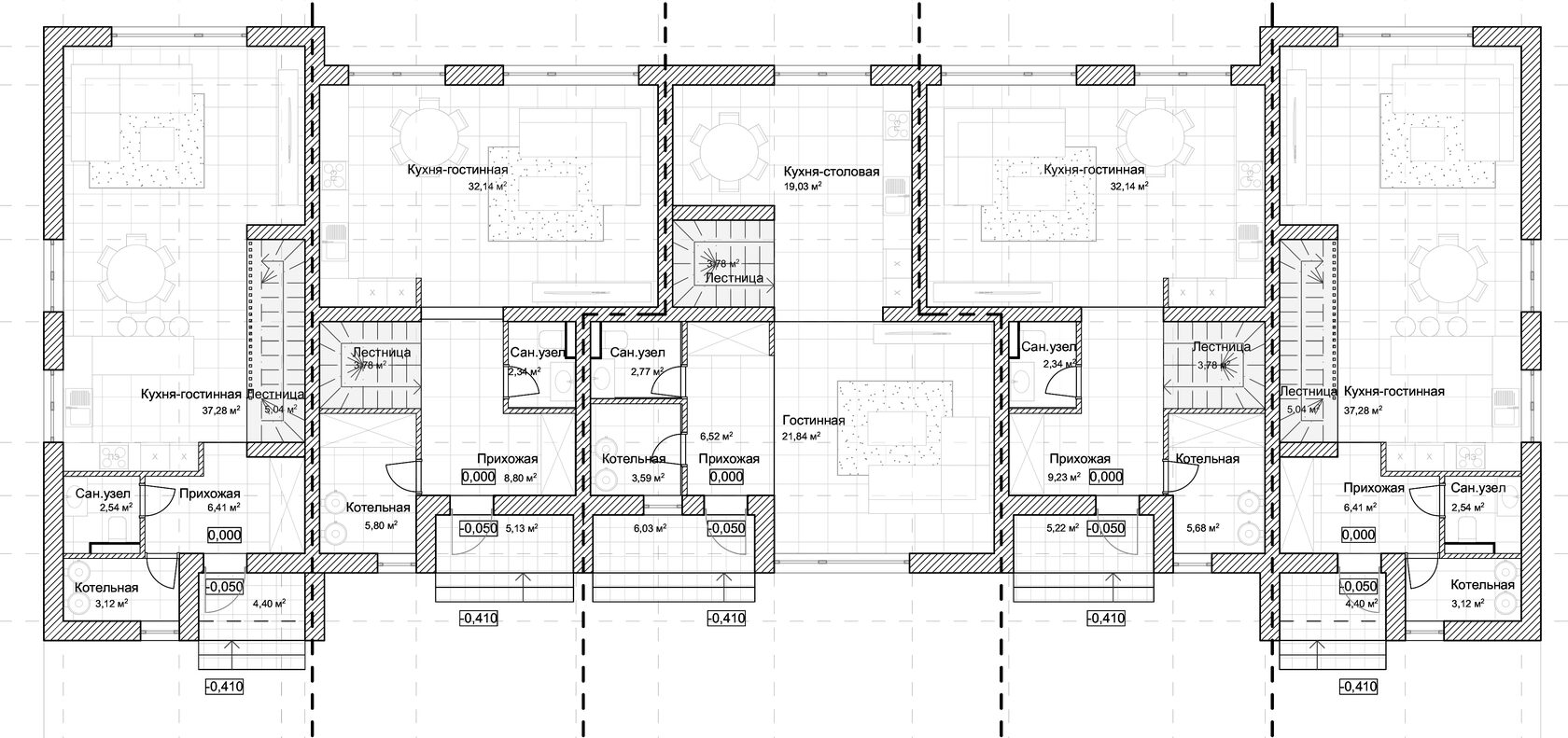
Общая площадь 541м

Создание компактного административного центра для города Вилейка, который будет минимизировать затраты на строительство. В результате чего, появляется третий этаж в виде мансарды, стена, плавно переходящая в кровлю, западающая входная группа.


Индивидуальный проект блокированного дома

Таунхаус
Публичное пространства
Градостроительство
Производственные объекты
Жилье
Образование
Медиа
Коммерческое
Культурное пространство
Туристические объекты
Административные объекты
Создание компактного административного центра для города Вилейка, который будет минимизировать затраты на строительство. В результате чего, появляется третий этаж в виде мансарды, стена, плавно переходящая в кровлю, западающая входная группа.

Создание компактного административного центра для города Вилейка, который будет минимизировать затраты на строительство. В результате чего, появляется третий этаж в виде мансарды, стена, плавно переходящая в кровлю, западающая входная группа.

План первого этажа
План второго этажа